$998,800
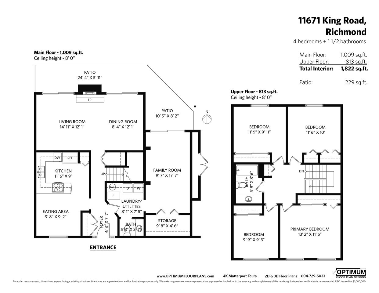
11671 King Road
Sold
More information
Features & amenities
- In Suite Laundry
- Recreation Nearby
- Shopping Nearby
- Fireplace 1
Additional details
- MLS® # R2587741
- Type Condo/Townhouse
- Subtype 1/2 Duplex
Listing is presented by
Patti Martin Real Estate Group
RE/MAX Westcoast